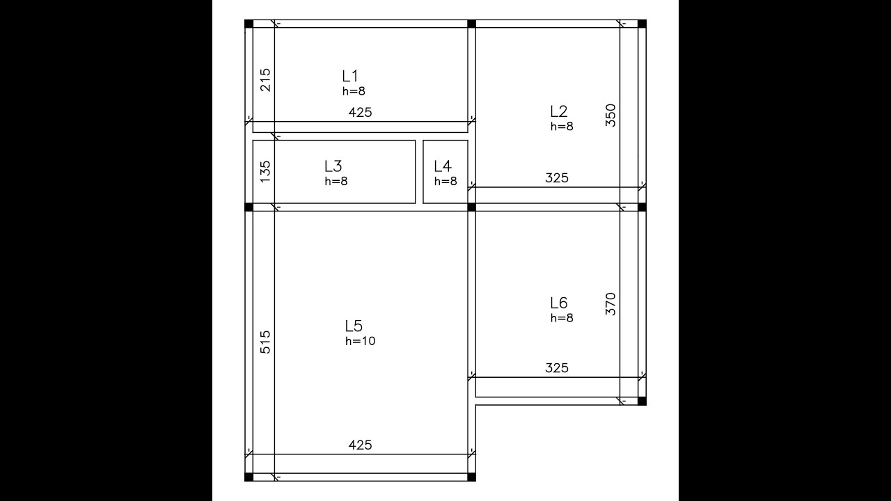
[Música] e aí pessoal tudo bom neste vídeo a gente vai pré selecionar um pavimento de concreto armado não impede mencionar as vigas lajes em pilares beleza é um papo é um edifício que tem térreo mais um pavimento seja tem três níveis de de pavimento térreo laje de cobertura o link do post anterior desse vídeo tocando em que imagina a inscrição caso você tem interesse de entrar na área de taupo eu sempre recomendo o livro professor xu beleza além de se capacitando você está contribuindo com gente a sempre trazem mais conteúdo para vocês e é isso aí pessoal no vídeo então o pessoal antiga resolução da questão em si vou pedir a vocês é que se inscreverem no canal clicar em não tinham para receber a notificação indivíduo futuros esse pavimento ano-base de uma casa popular certo é não ignorar para esse exercício foto não existe uma escada beleza basicamente pegar um cara popular eu estou considerando como se tivesse um movimento acima então eu tenho aqui o pr um certo nível térreo no nível superior o tipo eo nível cobertura beleza e vamos considerar concreto 20 mtpa o objetivo do exercício é calcular pré dimensionar no caso a viga dos pilares e as lojas desse desse pavimento então inicialmente vamos fazer a locação dos pilares eu vou partir de uma regra colocando pilares é mais ou menos entre espaçadas entre três e meio e seis metros então vou começar pelos cantos da identificação botar os pilares nos cantos nesse campo pessoal eu tô passando o mouse em cima eu não vou colocar lá eu vou considerar que houve eu tenho uma vida aqui nessa vertical e que havia resultado chegando nela beleza então não vou colocar pela nesse canto nós temos aí por enquanto que cinco pilares beleza vamos lá nessa vertical aqui nós temos 77 metros e vinte beleza como este volta muito grande essa distância de pilar está muito grande e vou colocar um piloto bem no encontro dessas paredes aqui beleza que ela tá mais ou menos a três metros e 60 indo de deixar lixo nessa marcação mesma ideia nós vamos seguir aqui nos sete metros e 50 vou colocar um pilar bem no encontro a parede beleza mesma coisa que no 8 65 da vertical e também nessa região central aqui já que também teria os sete metros e meio pronto tá é concluir aí pessoal nossa colocação de pilares é então basicamente o que eu disse para os cantos da edificação ea partir daí fui vendo o espaçamento entre esses pilares do campo passamento os pilares intermediários e eu ia colocar partindo agora pra o prédio em funcionamento das vigas nós temos o que essas três regras aqui que eu vou utilizar um sobre do vôo 45 anos de vigas contínuo 1 sobre ideias levam quatro anos externos devido às contínuas ouvir e apoiada e um quinto do vão para para a vida de balas nesse caso aqui a nossa rotina só tem dois novos ou seja vai ser sempre o caso de transmissão interna então ele vai ter ou é vida continua controle externo liga de apoiada então a gente vai sempre cair nessa regra do 11 sobre dez anos após o ataque sempre com uma largura de 14 centímetros então nós temos largura e 14 por não pagar o que eu vou para dimensionar agora aquino no desenho bom eu vou colocar só altura da liga é dimensionada então nós temos o que aqui daqui pra cá nós temos um intermediário que a 14 e 25 / 10 nós vamos ter 42 e meio e aqui eu vou partir pra 40 centímetros detalhe que eu tô vendo um valor baixo mas lembra que entrou só prédio mencionando eu não estou isso não vai afinal eu estou imaginando que 42 e meio essa via consegue passar com 40 centímetros da educação tem que ser feito futuramente beleza essa aqui também na horizontal começar pelas horizontais a mesma ideia tem os mesmos 42 e mail vou partir com 40 de altura certa essa horizontal também essa que como só tem esse trama que de 325 seria dividido por 10 32 e meio foi voltar 30 centímetros joão da talha sol é isso depende muito de qual qual será seu próximo passo na batalha pessoal é isso vai depender muito de como nós vamos prosseguir com o com a verificação das suas vidas como no caso imaginando que eu vou partir para uma verificação através de algum software estão jogando o valor para baixo 42 e mail jogando pra 40 se eu tivesse verificando se eu fosse posteriormente verificar utilizando cálculos manuais é manualmente eu iria provavelmente o valor pra cima para evitar o retrabalho maior beleza então esse 42 e meio eu ia para dimensionar a 45 cm de altura mas seguindo essa idéia é que a gente vai seguir com cálculos computacionais eu vou seguir a mesma a mesma idéia então nessa horizontal que também votei 40 beleza na vertical pessoal nós temos que esse trama aqui daqui pra cá que é de 515 / 10 51 e meio vou botar uma viga de 50 de altura lembrando que eu tô com a 14 de largura então essa viga teria capotado e por 50 a efeito de prédio em funcionamento nessa vertical aqui beleza apesar do vôo ser pequeno eu vou partir com 30 cm de altura como dimensão mínima de viga beleza então essa linha terá 14 por 30 nessa vertical igual ao do lado também vai ter 50 de altura e aqui nessa última vertical nós vamos ter 40 de altura beleza os 37 aqui como está bem próximo de 40 vai jogar pra 40 partindo agora para o prédio em si além das lajes agora já tô coloca nas dimensões internas já separados pela vila vamos partir de qual ideia pessoal vamos assumir que para dimensionamento de vigas a gente vai pegar menor dimensão da lavagem então utilizando quilates maciças e vamos dividir esse valor por 40 a chegar na altura eu já vou imediatamente calcular conferir um vôo que uma laje de oito centímetros aguentaria com que os sentimentos porque o time de admissão mínima de o laje maciça então seguindo essa idéia de um multiplicador de 40 e vou ter que oito centímetros x 40 vamos ter trezentos e vinte centímetros então a dublagem que a menor dimensão vai até trezentos e vinte centímetros eu considerava uma loja de oito centímetros de espessura aqui nós temos o que 215 vou colocar 8 ac 7 35 aqui e aqui também vai 8 a mesma coisa esse pessoal que elas têm 225 se eu pegar 325 por 40 mas há um pouco maior do que r 320 mas num caso também vou dormir com 18 cm maior ou menor bela cinco show dividir por 40 eu vou chegar em 10,6 25 centímetros mais uma vez eu vou jogar para baixo beleza 10 centímetros só um detalhe pessoal do hospital chama a atenção a primeira é que esse método é muito simplificado e muitas vezes é conservador então mesmo sendo 10 em você e eu tô jogando para 10 o segundo ponto é o mesmo já apontaram ter alguém quer só um prédio em funcionamento e vou seguir com cálculos computacionais ou seja se eu errei meu nome está tanto fazer essa correção mas para dimensionar um valor rocha que seriam dez cêntimos beleza lembrando que mesmo sendo um método simplificado se ele for seguir com cálculos manuais provavelmente a jogar essa laje para onde centímetro de espessura civil foi útil para você até o momento mas quero deixar eu gostei partindo agora para pré dimensionamento dos pilares nós vamos dividir esses pilares por área de influência de modo que metade do vôo metade do espaçamento entre um pilar e outro vai ser responsável pela equipe lá no carro que como estava pensado na figura e pilar central aqui metade do vão para os pilares que estão próximos a ele para os pilotos à minha frente vão descarregar nesse pilar nessa área como capital nessa área achou nada nós vamos partir para o plano é normal característica um chip capaz não faltou o alfa eo alfa vai depender da produção do piloto em planta de modo que ele é modificado por um ponto 3 para pilares intermediários e 1. 6 para os piores de extremidade votarão um é aqui ó esse e esse e 1. 8 para o pilar de canto no caso são os pilares do canto aqui estou marcando nesse desenho beleza esses fatores são utilizados para levar em conta os momentos que nesse prédio ensinamento comentar nada apenas anormal repique maior era normal como se vestisse um momento de beleza nós vamos partir de uma carga do pavimento tipo de 12 quilômetros por metro quadrado então que apresentar na fórmula é 12 quilômetros o metro quadrado fazer o quê então multiplica o alvo que tem referência com a posição a planta pelo que quebrou nosso carro que eu considero a 12 pela área de influência daquele pilar de ele ceni que é o número de pavimentos tipo só um detalhe que são nosso exemplo a gente tem aqui um pavimento que é o superior que seria um novo pavimento tipo um papel de laje beleza o pavimento térreo e o pavimento cobertura o pavimento térreo eu vou considerar que ele tem 30% da carga do pavimento tipo beleza e o pavimento cobertura ele tem 70% da carga do pavimento tipo de modo que se a gente for destruction essa formulação aqui para o nosso problema nós temos que o que é o nk é igual a alfa dependendo da posição na planta vezes o que que é 12 vezes a área dizem ele é o que tem um pavimento tipo mas 03 que é do térreo mas 07 que é da cobertura então nós temos que o nk para o nosso problema ele vai valer o que 24 vezes alfa vezes a beleza 24 vezes ao avisar a gente vai chegar na nossa normal característica estimada beleza eu vou chamar atenção pra isso que se apenas para pré dimensionamento então de uma janela do hall que a gente costuma usar que o gama df que normalmente para concretamente utilizam 1.
4 hora pilares em que tem uma dimensão de 19 a 14 centímetros conforme a gente viu no vídeo anterior que eu vou te colocar no carro em cima sobre lajes em balanço a nova utiliza 11 na jogador adicional beleza e se chama ele de acordo com tabela no nosso caso eu vou considerar pilares com dimensão mínima 14 centímetros nós chegamos a ele vai valer 1,25 beleza gama enem vai valer 1. 25 partir daí pessoal do do nbb estimado que seria meu mk majorado pelo fatores eu vou dividir essa normal de cálculo estimada por uma atenção que eu considero ideal essa tensão ela considera a pena é o pilar sofrendo com pressão simples mas como a gente imaginou para pilares de canto e pilar laterais dá pra gente ter uma idéia das dimensões finais desse pilar beleza então o problema em questão a gente tem um t o gama df é 1. 4 gama em um ponto 25 eo nk para esse problema já tinha encontrado que era 24 alfa a então resolver aqui por exemplo nós temos 42 alfa isso vai direto pra gente nossa normal de cálculo estimada no caso da área de concreto estimada vai se o md estimado / 0 85 fc de mais r 84 lembrando que a selic tem que entrar em que o nilton por centímetro quadrado então nós temos 0 85 2,5 / 1.
4 mas 0,84 isso aqui vai dar 20 358 quilômetros por centímetro quadrado então por esse problema é que não é parte pessoal como é que ele vai trabalhar e vou te área de influência de cada pilar beleza vamos explicar pelo fato que depende da posição dele implanta e multiplicar por 42 com isso o cheiro anormal de cálculo devido a esse valor o 2. 358 eu vou chegar em uma área em centímetros quadrados uma área de concreto este mama vamos resolvê é um pilar central é um pilar central identificação então nós temos o que é anormal de cálculo estimado ela vale o que 42 vezes alvo no nosso caso vale 1,3 a tranqüila em intermediário ou central vezes área de influência que é 16,22 isso aqui vai dar uma normal de 885,6 61 quilômetros agora pessoal a área vai ser o que a área de concreto estimada vai ser essa normal 885,6 1 / 2,358 isso aqui vai dar uma área de 375 de 57 centímetros quadrados estou supondo que aquele maior a do gama ele de 1. 25 então já estou supondo que a menor dimensão é 14 centímetros então se eu sei que uma dimensão a outra vai ser o que olha 385,50 7 / cá por sentimentos que a dimensão que eu já conheço então a outra dimensão que nunca dimensão maior vai dar 26,87 centímetros que no carro a gente vai considerar 27 centímetros então no caso do pilar central ele vai ser um pilar de 14 ou 27 centímetros mundo agora para o pilar lateral e tranqüila lateral em que a normal estimada vai ser o que 42 vezes o alfa de prata lateral vale 1,6 vezes a área de influência detalhe destacado 9,52 metros quadrados o nbb aqui estimado vai valer 639 fíbula 74 quilômetros então a área de concreto estimada valley 639 1,74 / 2,358 isso aqui vai dar pessoal 271 centímetros quadrados só que vamos prestar atenção que esse valor ele é inferior à área mínima que é através de 160 centímetros quadrados que é o valor que a gente vai prosseguir com o cálculo então se eu sei que a hora que eu preciso é 360 quadrados e que uma das dimensões da 14a outra dimensão vai ficar em 25,71 centímetros que nós vamos levar pra 26 centímetros então esse pilar que o lateral vai valer vai ficar com 14 o 26 ele seria o piloto pessoal com o maior lateral com ordem influência então e vai valer pra todos os laterais beleza não provem que matou central e eles o dos três laterais indo agora para o pilar de canto e piloto em sete pontos 69 metros quadrados nós vamos ter que a amd vale 42 vezes o alva 1.