el proyecto ejecutivo es aquel que reúne todos los detalles y descripciones necesarias para realizar los procesos de construcción de inicio a fin para cualquier edificio estos incluyen planos constructivos planos estructurales planos de instalaciones de acabados detalles jardinerías carpinterías herrerías cancelería planos arquitectónicos en planta corte e isométricos planos de aones etcétera el plano es la representación gráfica acotada y a escala de un objeto existente o para ensamblar su existencia esta representación puede ser de dos dimensiones o de tres dimensiones algunos programas permiten el dibujo en cuarta dimensión que es el tiempo pero esto no lo abordaremos
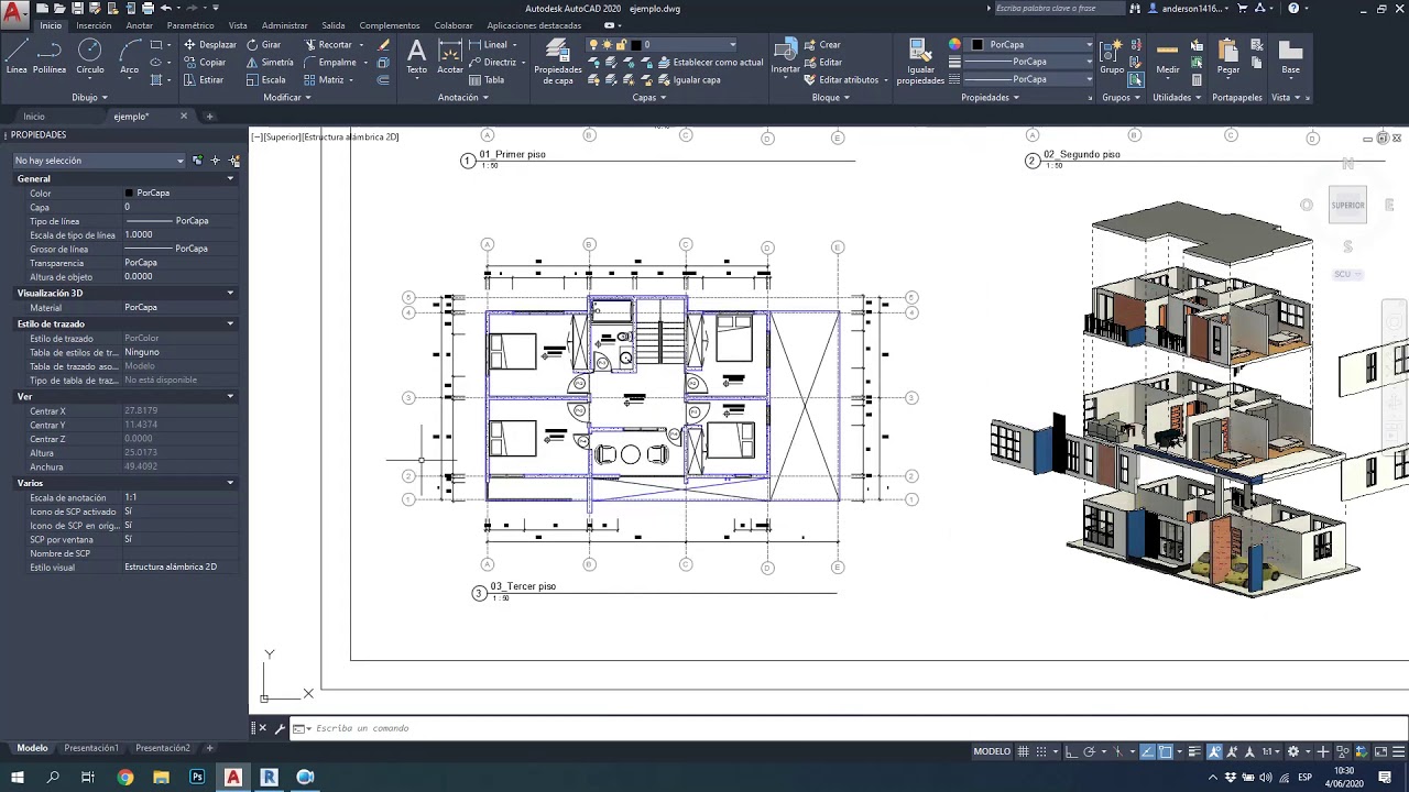
en este momento Asimismo la representaciones pueden ser desde diferentes vistas en dos dimensiones tenemos tres vistas la vista la lateral y la frontal para las representaciones en tres dimensiones tenemos más tipos de vistas como el isométrico la perspectiva a un dos y tres o más puntos de fuga la representación caballera etcétera los planos son parte de nuestro lenguaje profesional Y si bien como en cualquier expresión cada individuo tendrá sus particularidades existe un acuerdo común y normas que deben cumplir para presentar la información de manera legible para todo todos los involucrados todos los planos requieren de
un pie de plano que es en donde encontraremos la información general tanto de la representación gráfica que alberga como del proyecto mismo se incluye información como el nombre del proyecto el nombre del propietario su ubicación nombre del proyectista fecha su acotación y escala especificaciones el norte magnético la escala gráfica clave del plano croquis de de ubicación etcétera otro acuerdo en común es el uso de las escalas las escalas pueden ser tan variadas como un DC pues al fin de cuentas son relaciones matemáticas sin embargo los planos se expresan en casi todos sus casos en las
siguientes escalas escala 1 a 5 1 a 10 1 a 20 1 a 25 1 a 30 1 a 50 1 a 100 1 a 125 1 a 200 1 a 250 un 500 un a 750 y un a 1000 esto quiere decir que cada unidad en el plano centímetros por ejemplo representa 5 o 10 o 20 o etcétera unidades reales el grado de detalle del plano dependerá de la escala a la que se esté dibujando entre más pequeña sea la escala menor será el det por ejemplo un Plano urbano Generalmente utilizará escalas en los
rangos de 1 a 500 o 1 a 1000 en contraparte un detalle de Unión en un plano de carpintería podría representarse en valores más cercanos a escalas de uno a c o de uno a 10 para poder Navegar adecuadamente dentro de un dibujo necesitamos referencias estas serán los ejes y las cotas Los ejes son una retícula es decir van en sentido tanto horizontal como vertical uno se nombra con números y el otro con letras así podemos nombrar elementos en el plano como el muro en el eje a que corre del eje uno al dos las
cotas nos sirven para representar las cantidades de unidades que mide cualquier elemento representado la simbología nos proporciona información específica sobre el proyecto como por ejemplo niveles o bancos de nivel desniveles inicios y finales de rampas o escaleras espacios vacíos o espacios con cambio de altura de entrepiso como las dobles o triples alturas proyecciones de elementos que se encuentran en niveles superiores líneas de corte para referenciar planos de sección con planos de vista Superior